45 Delaware Road, NIAGARA PARK
House
Easy Living in a Convenient Location
Perfectly positioned opposite a peaceful public reserve, this charming single-level home offers both convenience and comfort in the heart of Niagara Park. Just moments from the train station, buses, shops and local schools, it's an ideal opportunity for first home buyers, young families or savvy investors seeking strong long-term growth.
Set on a low-maintenance block, the home is constructed from solid concrete block and tile, providing excellent durability and ease of upkeep. Inside, the light-filled layout feels warm and inviting, with high ceilings enhancing the sense of space. Beautiful hardwood timber floors and a modern, neutral colour scheme create a fresh and stylish foundation for any décor.
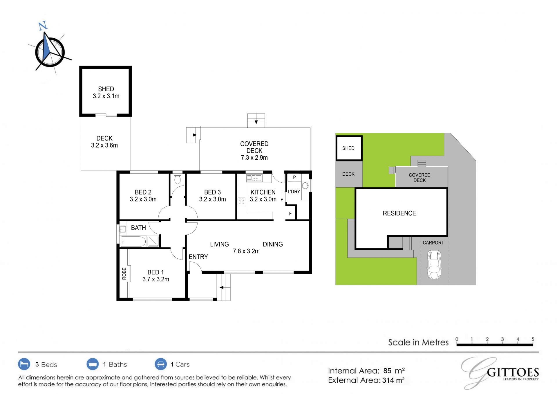
The updated kitchen features gas cooking, generous storage and a functional design that flows seamlessly to the dining and living areas. There are three well-proportioned bedrooms, with the master offering a full-length built-in robe. For year-round comfort, the home is equipped with ducted air-conditioning and two natural gas points.
Adding to the home's value and efficiency are the near 6.5 kW roof solar panels, significantly reducing annual power costs.
Outdoor living is well catered for with a large entertainer's deck accessed directly from the kitchen, ideal for hosting friends or simply relaxing in the sunshine. The fully fenced backyard offers a great mix of lawn and paved spaces, along with an additional decked area and a large garden/storage shed.
This is a wonderful opportunity to secure a quality home in a central, well-connected location, ready to move in and enjoy, with plenty of potential to add your own finishing touches over time.
Email the agent for a detailed property eBook. If you don't receive a response within 60 seconds, please check your junk mail!
DISCLAIMER: This advertisement contains information provided by third parties. While all care is taken to ensure otherwise Gittoes Leaders In Property does not make any representation as to the accuracy of the information contained in the advertisement, nor does it accept any responsibility or liability, and recommends that any client makes their own investigations and enquiries. All images are indicative of the property only.
Set on a low-maintenance block, the home is constructed from solid concrete block and tile, providing excellent durability and ease of upkeep. Inside, the light-filled layout feels warm and inviting, with high ceilings enhancing the sense of space. Beautiful hardwood timber floors and a modern, neutral colour scheme create a fresh and stylish foundation for any décor.
The updated kitchen features gas cooking, generous storage and a functional design that flows seamlessly to the dining and living areas. There are three well-proportioned bedrooms, with the master offering a full-length built-in robe. For year-round comfort, the home is equipped with ducted air-conditioning and two natural gas points.
Adding to the home's value and efficiency are the near 6.5 kW roof solar panels, significantly reducing annual power costs.
Outdoor living is well catered for with a large entertainer's deck accessed directly from the kitchen, ideal for hosting friends or simply relaxing in the sunshine. The fully fenced backyard offers a great mix of lawn and paved spaces, along with an additional decked area and a large garden/storage shed.
This is a wonderful opportunity to secure a quality home in a central, well-connected location, ready to move in and enjoy, with plenty of potential to add your own finishing touches over time.
Email the agent for a detailed property eBook. If you don't receive a response within 60 seconds, please check your junk mail!
DISCLAIMER: This advertisement contains information provided by third parties. While all care is taken to ensure otherwise Gittoes Leaders In Property does not make any representation as to the accuracy of the information contained in the advertisement, nor does it accept any responsibility or liability, and recommends that any client makes their own investigations and enquiries. All images are indicative of the property only.
Overview
-
House
-
For Sale
-
85 sqm
-
399 sqm
-
1
-
$1,584.45 Per Year
-
$1,185.08 Per Year
